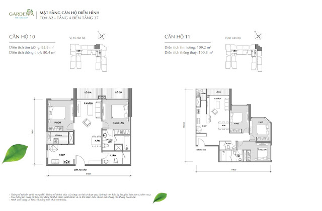
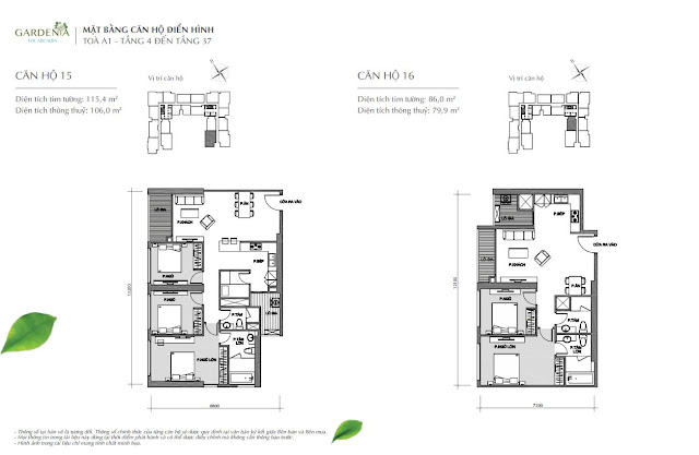
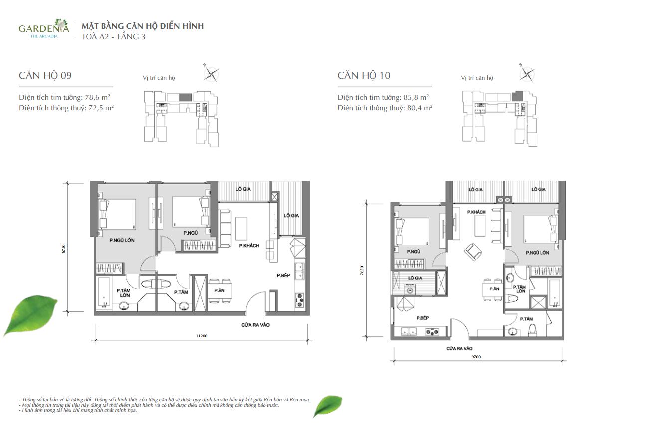
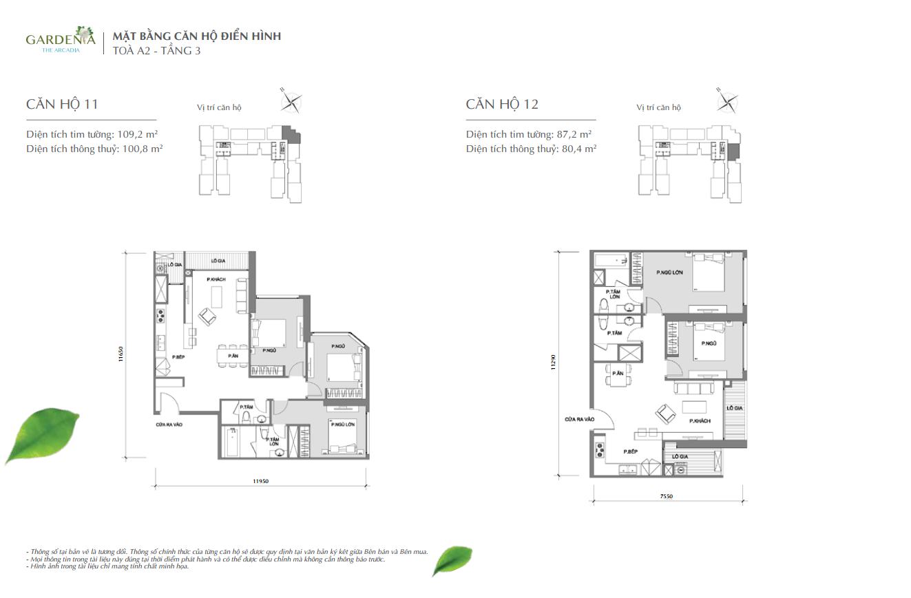
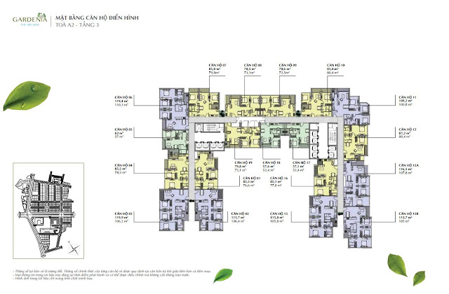
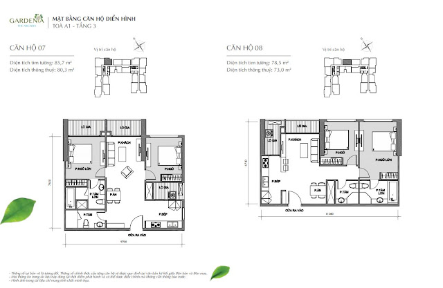
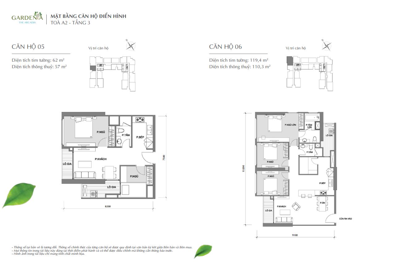
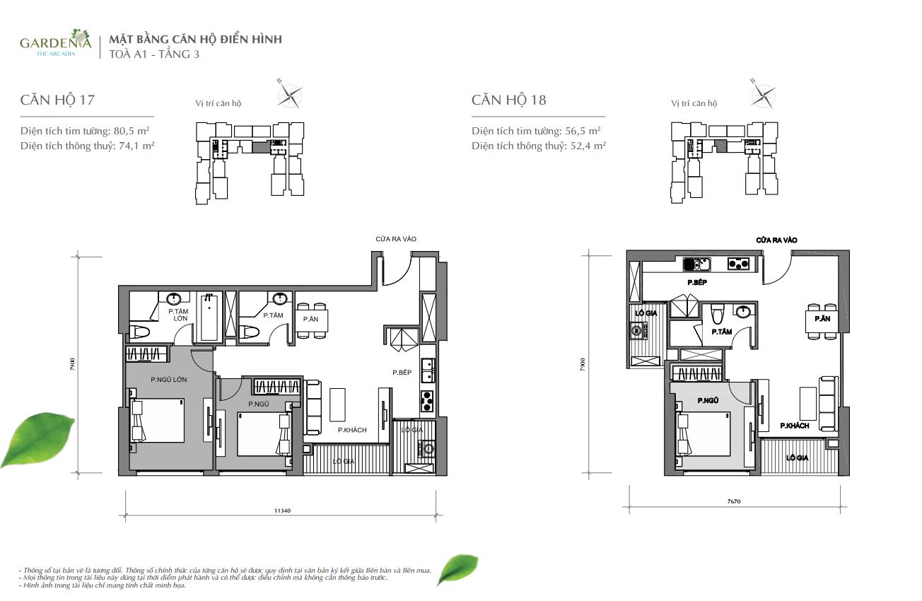
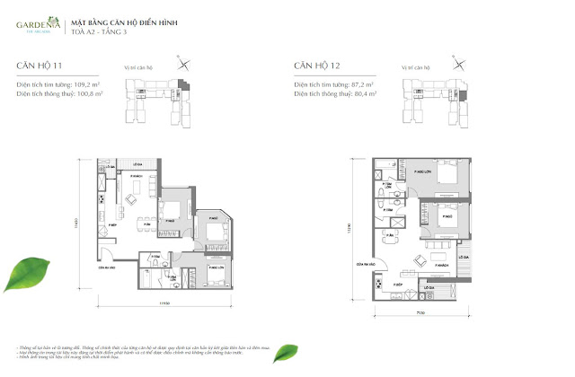
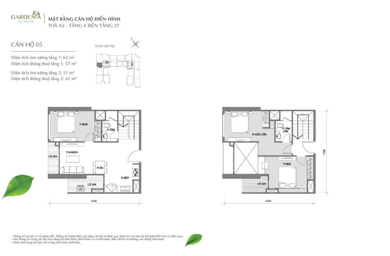
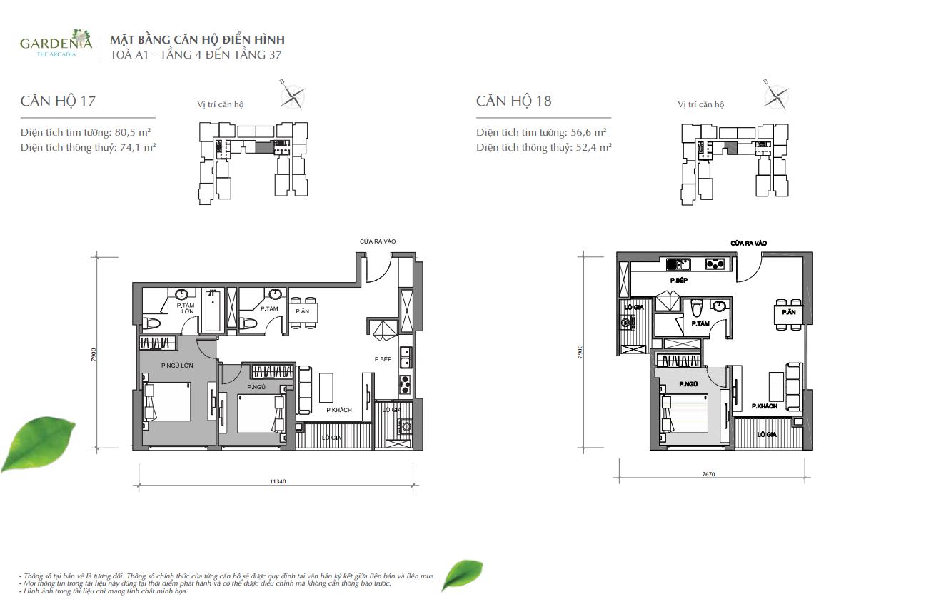
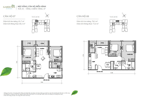
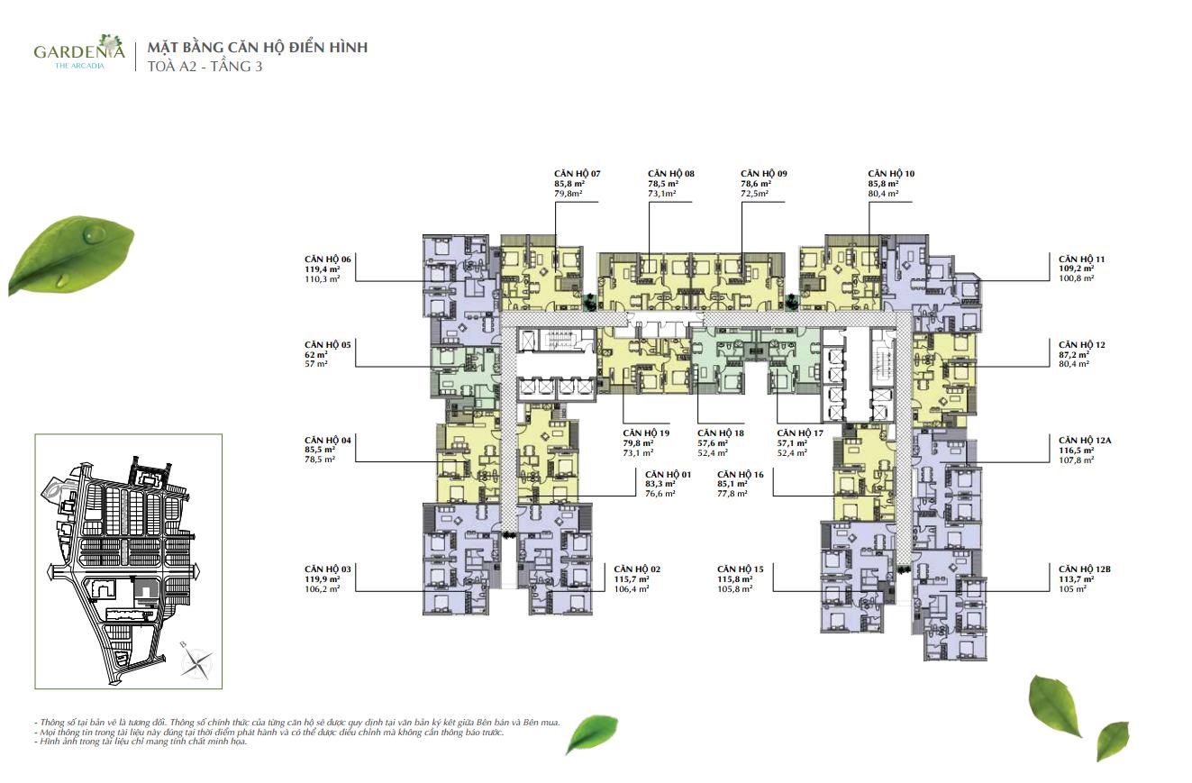
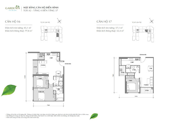
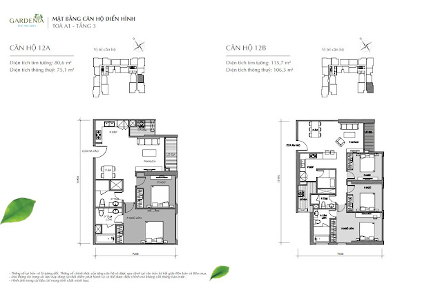
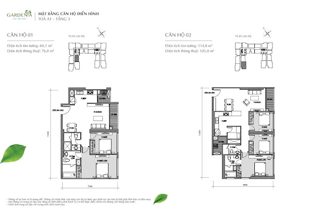
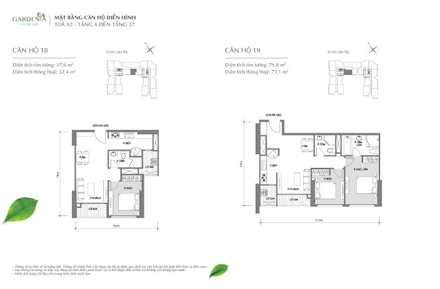
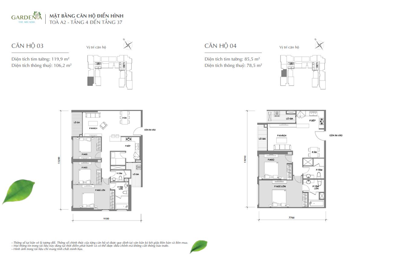
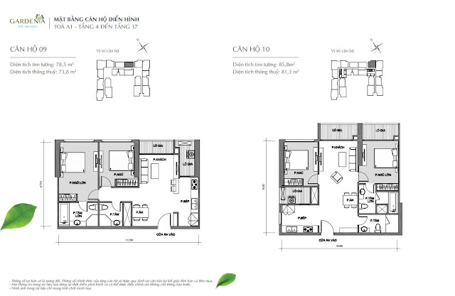
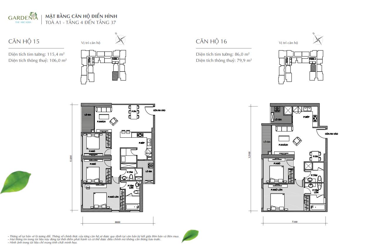
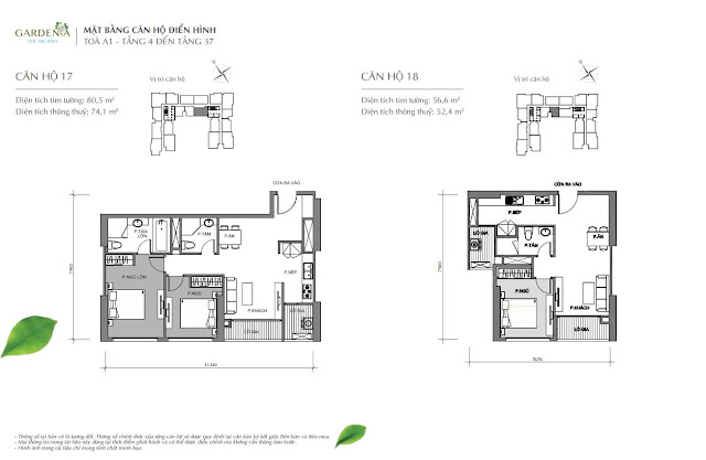
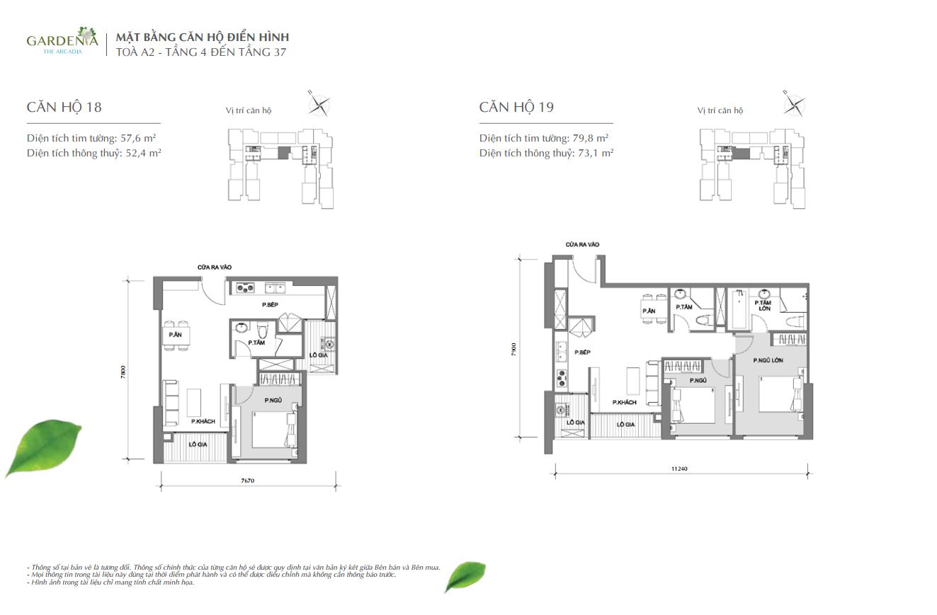
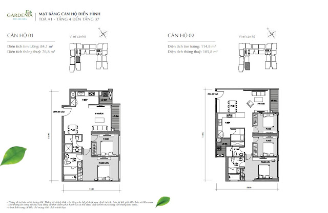
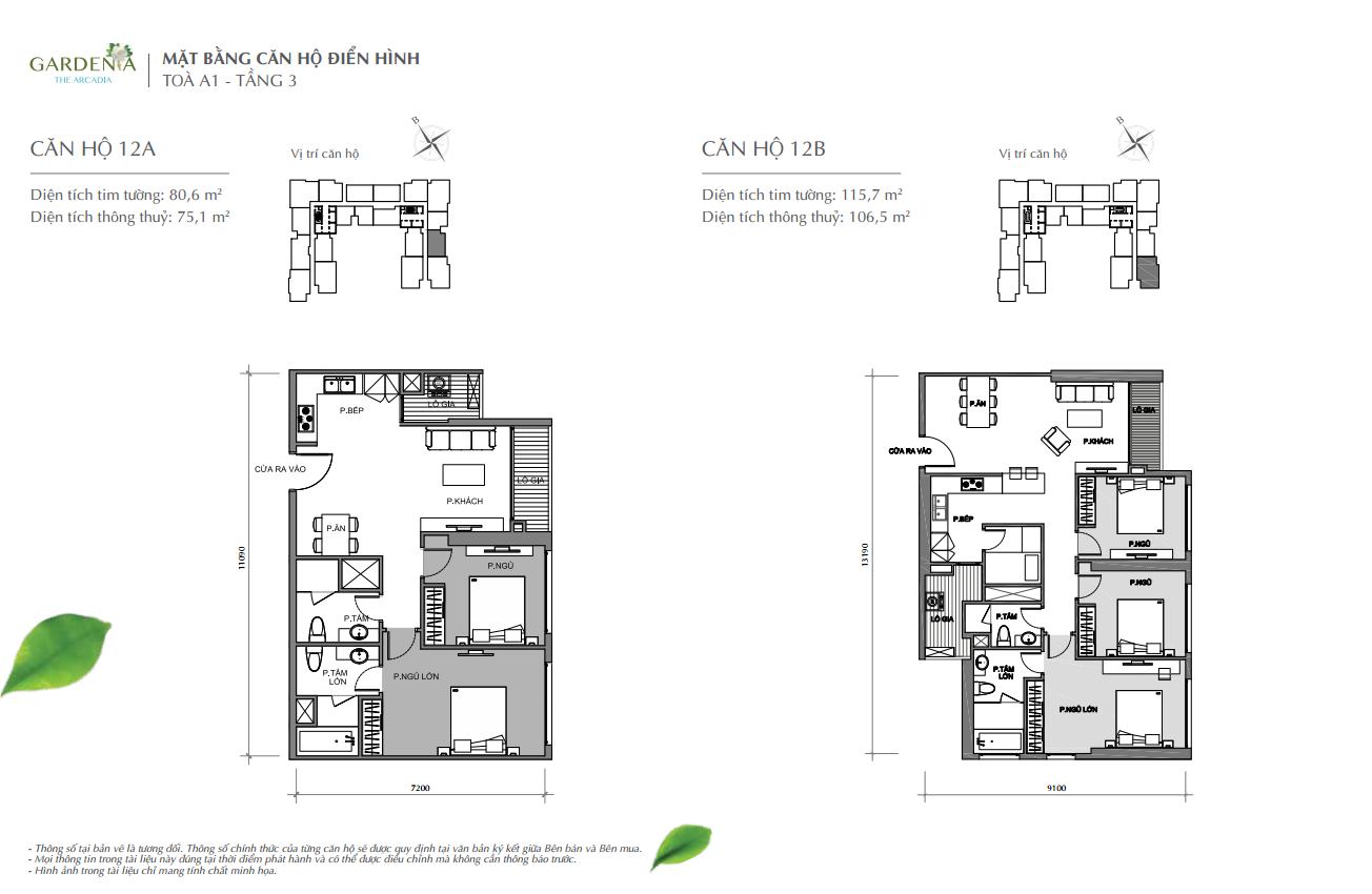
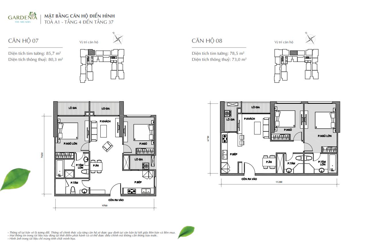
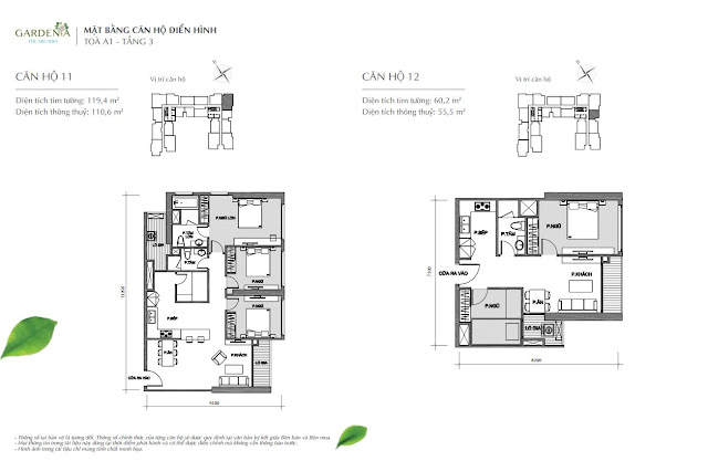
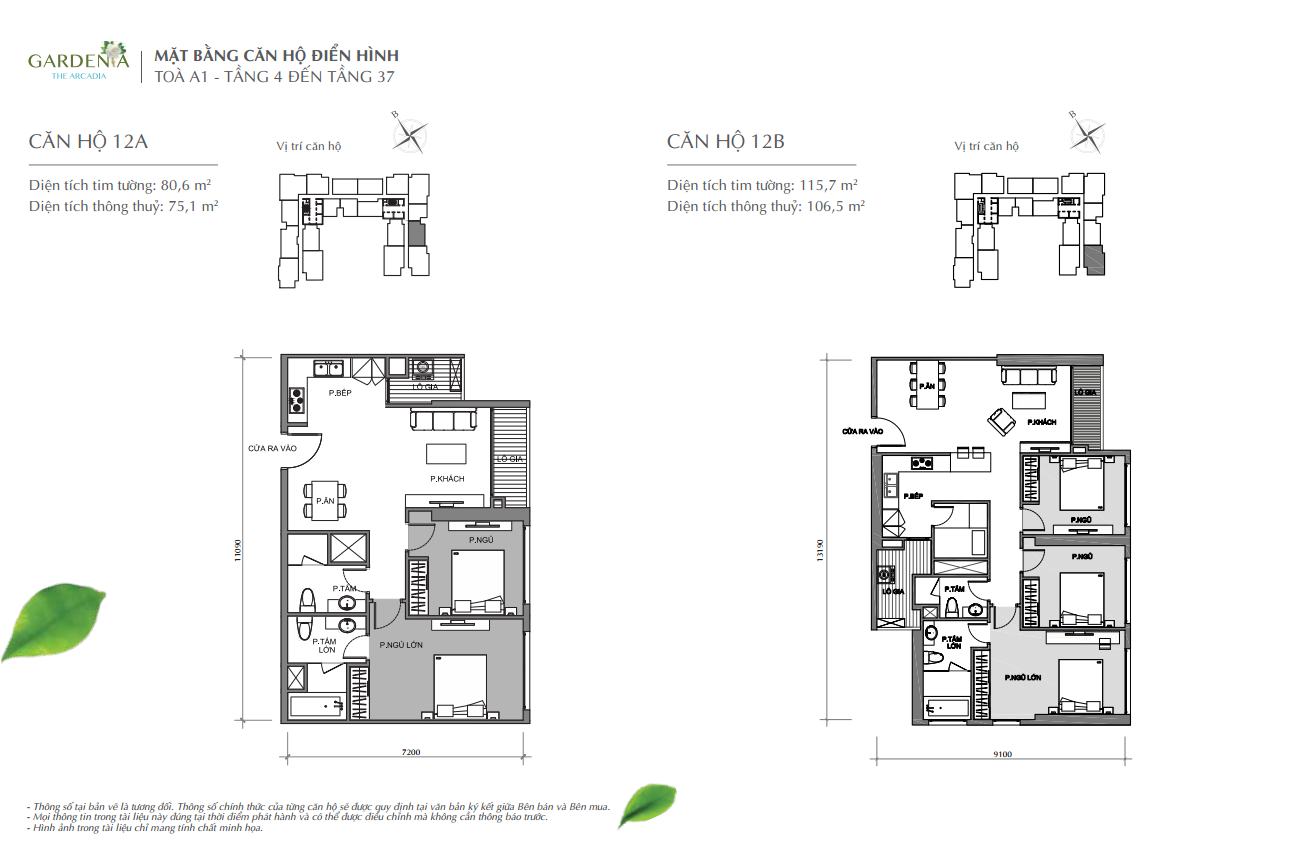
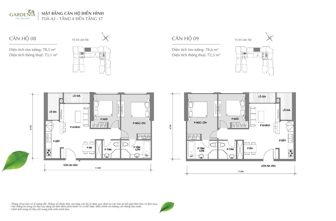
TỔNG QUAN TÒA CHUNG CƯ ARCADIA - VINHOMES GARDENIA MỸ ĐÌNH
ĐĂNG KÝ TƯ VẤN NGAY
0944.386.582
ĐẠI DIỆN PHÂN PHỐI DỰ ÁN
MR.PHÚC VINH : 0944.386.582
LH : 0944.386.582
TỔNG QUAN KHU BIỆT THỰ THE BOTANIA The Botanica là tên gọi khu thấp tầng của thành phố ban mai Vinhomes Gardenia . T...
ĐĂNG KÝ TƯ VẤN NGAY
0944.386.582
0 nhận xét:
Đăng nhận xét